Residential

Mexico

CASA ALMENDROS

BEFORE

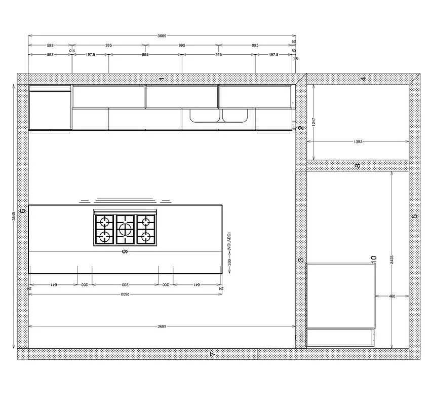
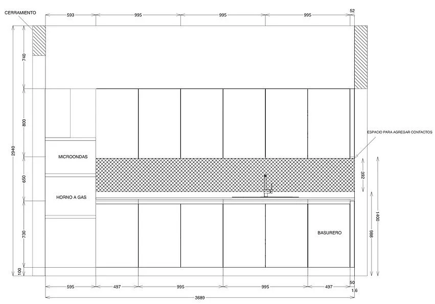
KITCHEN PLANS

Floor Plan

Island Elevation

Main Wall Elevation

Pantry/Fridge Elevation

*ALL DIMENSIONS ARE METRIC*

ELECTRICAL PLANS

Sink/Oven Elevation

Main Wall Elevation

Pantry/Fridge Elevation

*ALL DIMENSIONS ARE METRIC*

Previous
Previous

ViciTheRestaurant

Next
Next

Peranich